Bem vind@
Trabalhos
Contato
Bem vind@
Trabalhos
Contato
Yan Kruchin

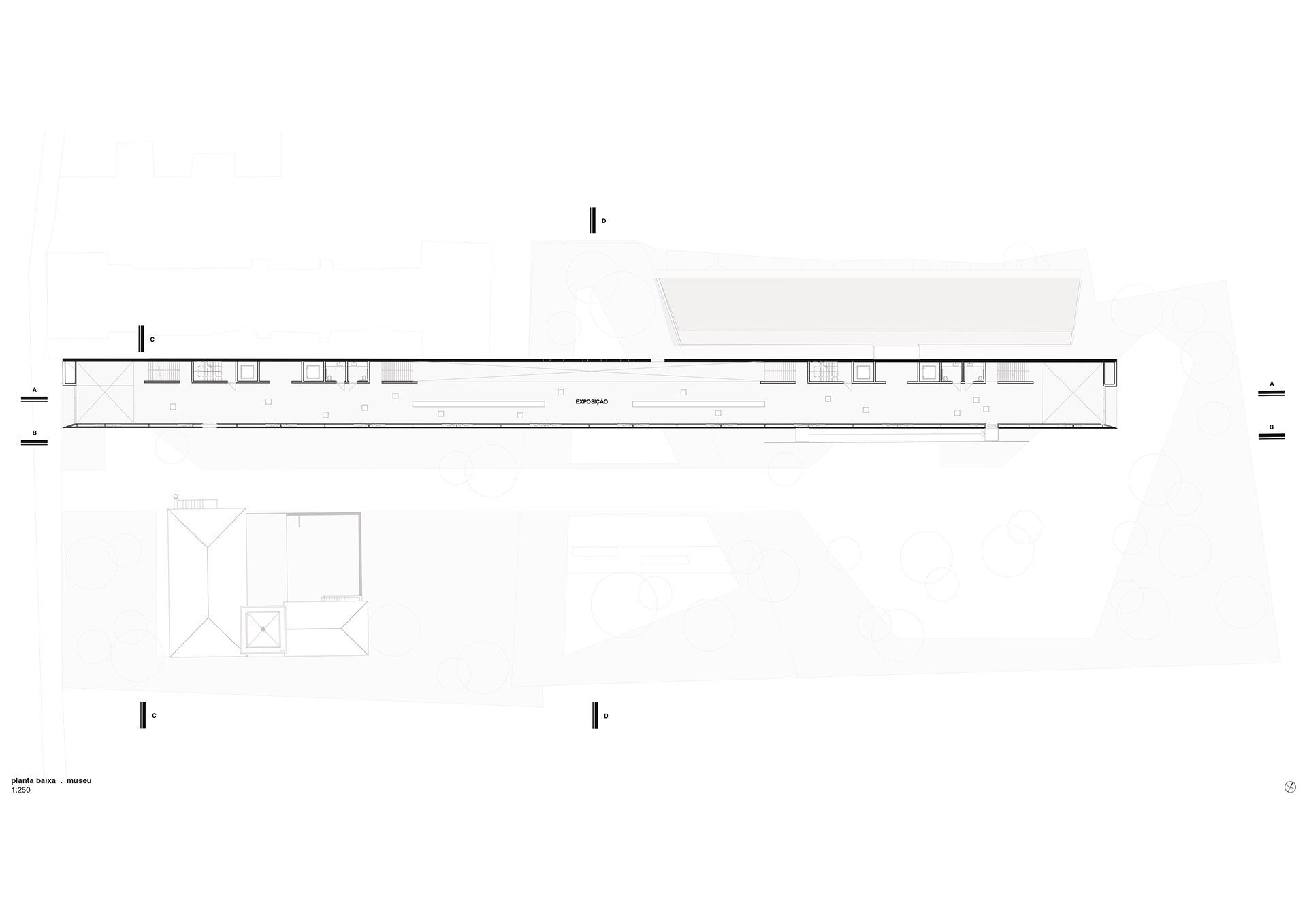
Entre diálogos fragmentados, museu de Porto Alegre

2025
Graphic Design, Architecture, Photography