Trabalho
Contato
Trabalho
Contato
Yan Kruchin

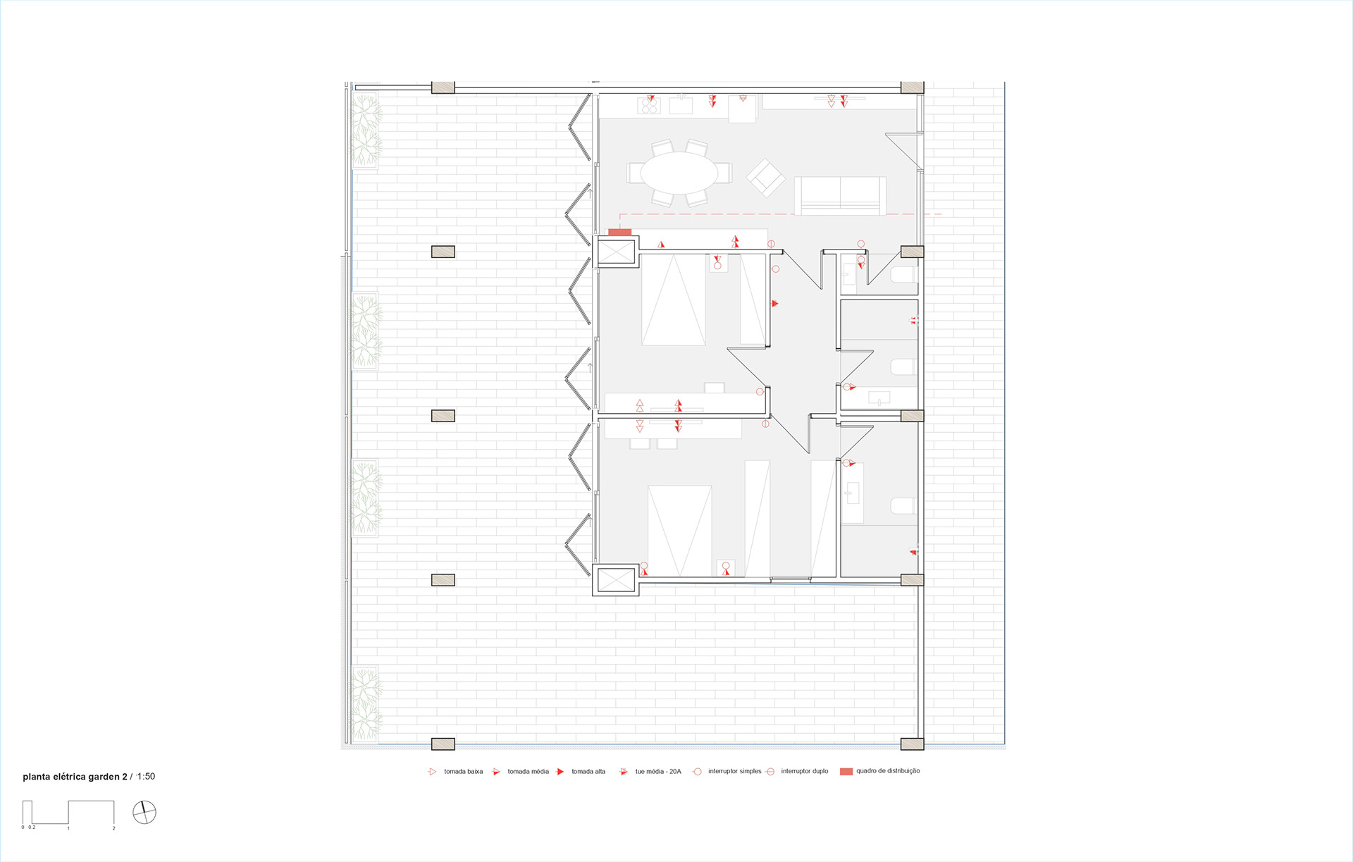
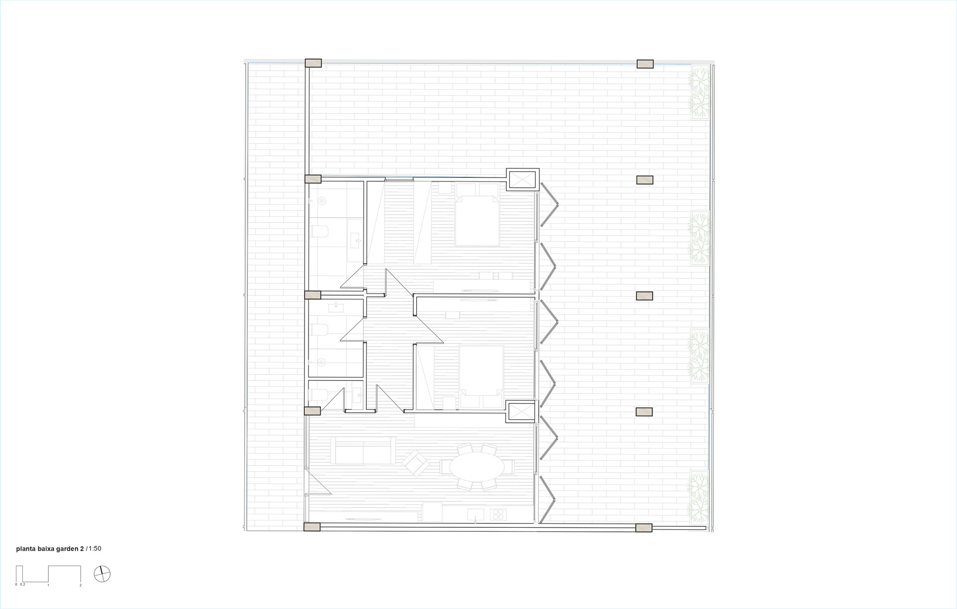
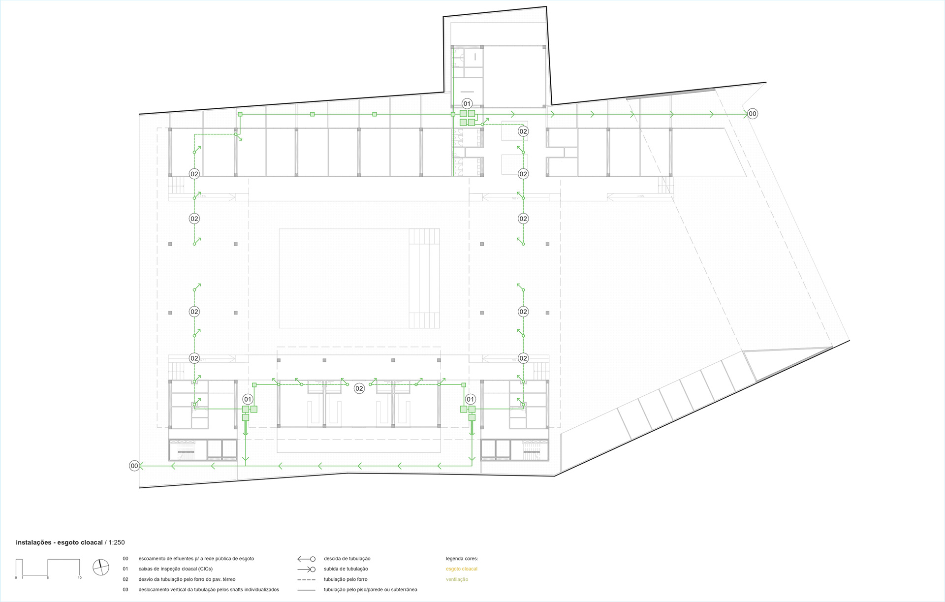
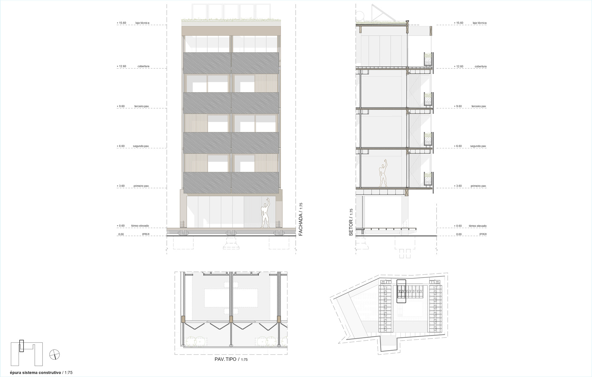
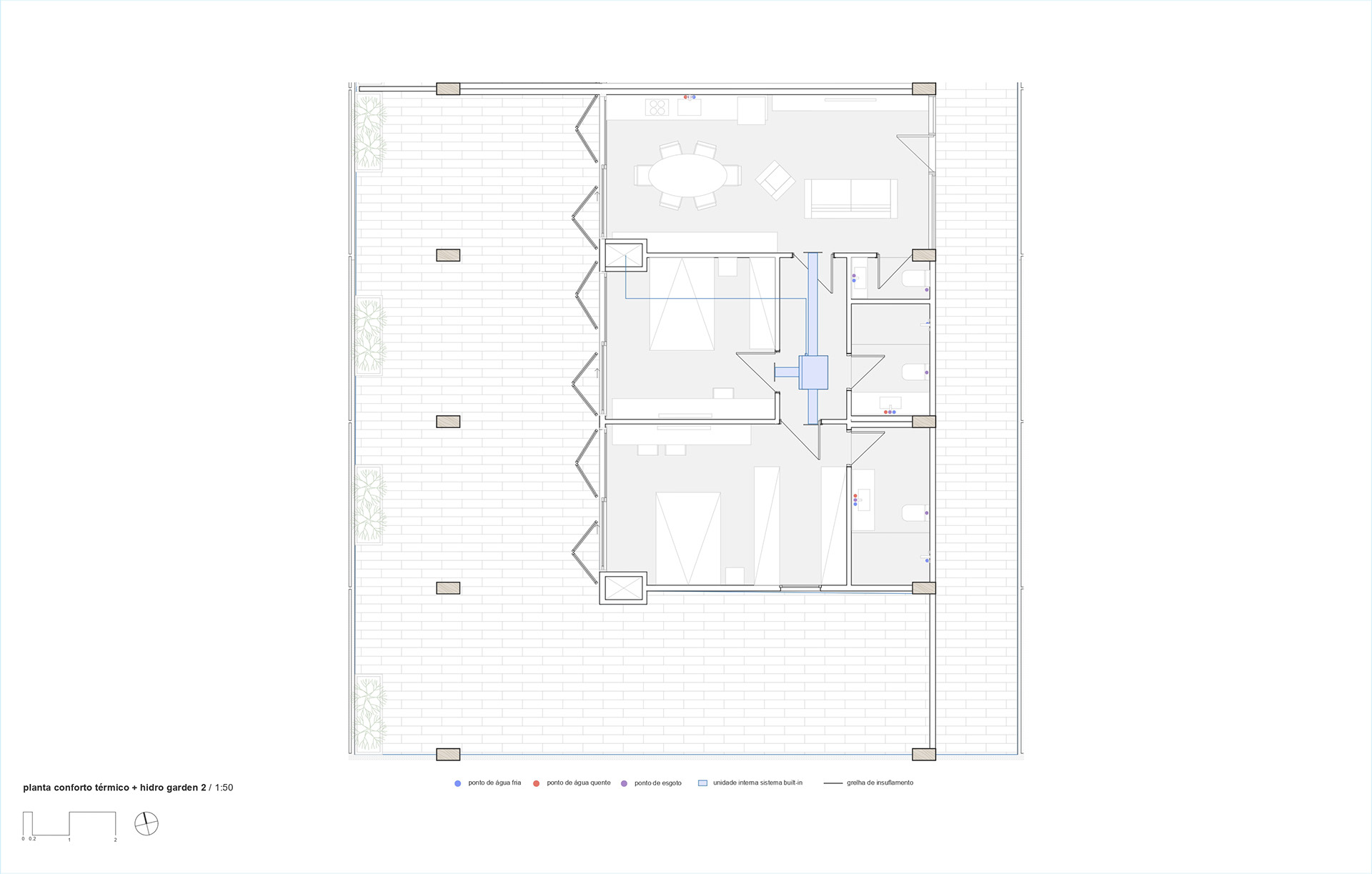
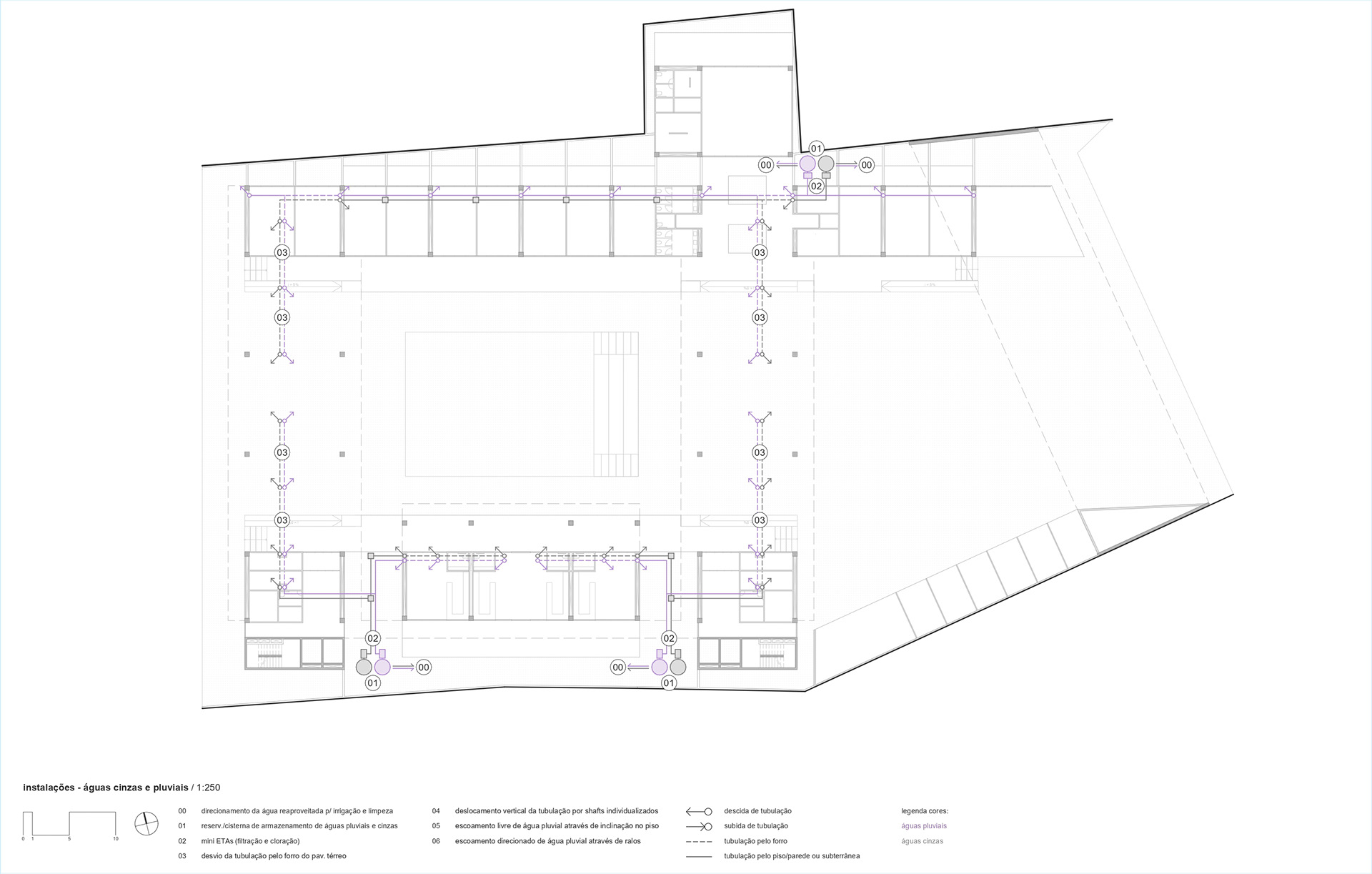
Conjunto habitacional no 4º Distrito

conjunto habitacional no 4º distrito. porto alegre, rs.

2026
co-autoria: dora aloise e valetina thomas.